Humboldt 395
Viví donde todo pasa, conocé esta gran inversión
Y reserva la unidad que más te guste
HUMBOLDT 395
Ubicación estratégica
El edificio se ubica en Humboldt 395, en el corazón de Villa Crespo, una zona de alto crecimiento urbano, conectividad inmejorable y excelente proyección inmobiliaria. A pasos de Av. Corrientes, Av. Juan B. Justo y Av. Córdoba, este proyecto se encuentra en un punto estratégico tanto para vivir como para invertir.
Cercano a líneas de subte, Metrobús, centros comerciales, polo gastronómico, espacios verdes y una vibrante vida cultural, este desarrollo se posiciona como una oportunidad única en una de las zonas más buscadas de la ciudad.
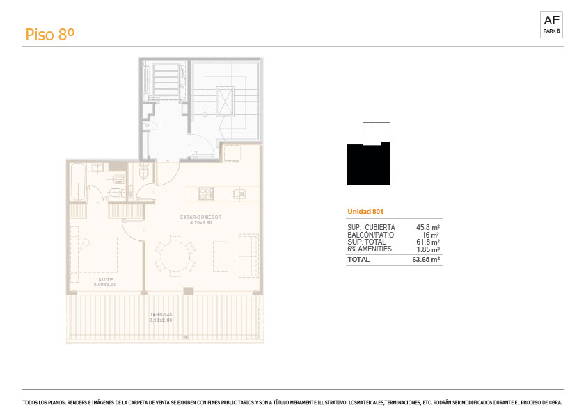
El proyecto
Este edificio se compone de planta baja y 10 pisos:
Planta Baja: ingreso principal, local comercial, acceso peatonal y bicicletero.
Pisos 1º al 8º: se desarrollan las unidades residenciales, todas de gran categoría.
Piso 9º: espacio común con SUM y parrilla, ideal para encuentros sociales.
Piso 10º: destinado a tanques y sala de máquinas.
La distribución general fue pensada para optimizar funcionalidad, confort y calidad de vida, con unidades versátiles, luminosas y con detalles premium. El proyecto busca equilibrar lo residencial con lo social y lo funcional.
Nuestros Amenities
SUM en 9° piso, ideal para reuniones y eventos.
Parrilla al aire libre, integrada al SUM.
Bicicletero en planta baja.
Instalación eléctrica completa en todas las áreas comunes.
Sistema contra incendios reglamentario (matafuegos y mangueras en palieres).
Ascensor automático de primera marca, con puertas de acero y espejo interior.
Calidad Constructiva
Interiores y terminaciones: tabiques de ladrillo, cielorrasos de yeso, pisos en todos los ambientes (porcelanato o madera en living y dormitorios; cerámicos o porcelanato en cocina, baño y balcón).
Placares: completos, con interiores terminados y frentes espejados o melamínicos.
Cocina: muebles en melamina, mesadas en mármol negro de Brasil o granito con bachas sobrepuestas, anafe de 4 hornallas y horno eléctrico, cocina eléctrica, instalación para lavarropas y agua caliente central.
Baños: completos, con cerámicos/porcelanato, espejo aplicado e instalaciones sanitarias de primera línea.
Aberturas y puertas: ventanales con vidrio 3+3 laminado, aberturas exteriores de aluminio, puertas interiores en placa pintadas.
Equipamiento: black out en todos los ambientes (dormitorios incluidos), instalación para TV, sistema para aire acondicionado tipo split.
Seguridad y calidad: ascensores automáticos, cerraduras de seguridad, herrajes de calidad e instalaciones eléctricas de primera línea.
Detalles de categoría: terminaciones de alta calidad que elevan el confort y el diseño de cada espacio.
Planos de construcción y unidades reservadas
Precios de pozo para tu inversión
Costo de cada unidad
| PISO | ambientes | m2 cub | m2 desc | m2 unidad | amenities | m2 totales | precio | valor m2 |
| 1 | 3 | 61 | 10,8 | 71,8 | 3,59 | 75,39 | $ 165.858 | 2200 |
| 2 | 3 | 61 | 10,8 | 71,8 | 3,59 | 75,39 | $ 173.397 | 2300 |
| 3 | 3 | 61 | 10,8 | 71,8 | 3,59 | 75,39 | $ 180.936 | 2400 |
| 4 | 3 | 61 | 10,8 | 71,8 | 3,59 | 75,39 | $ 188.475 | 2500 |
| 5 | 3 | 61 | 10,8 | 71,8 | 3,59 | 75,39 | $ 196.014 | 2600 |
| 6 | 3 | 61 | 10,8 | 71,8 | 3,59 | 75,39 | $ 203.553 | 2700 |
| 7 | 3 | 61 | 10,8 | 71,8 | 3,59 | 75,39 | $ 211.092 | 2800 |
| 8 | 2 | 45 | 16 | 61 | 3,05 | 64,05 | $ 185.745 | 2900 |
Desarrolla junto a nosotros
PRE RESERVA DIGITAL
La reserva de la unidad se hace efectiva luego de concretar el pago de la misma de forma presencial en nuestro local donde se firma el PRE BOLETO en la Av. Corrientes 5456, Villa Crespo, CABA. de 8 a 20 hs de lunes a viernes (después de completar este formulario tiene hasta 48hs para completar la operación, caso contrario se dará de baja la pre reserva de la unidad).
Es necesario completar la operacion de manera presencial para que la reserva quede efectiva.




